Salisbury Road, Bath
Project Pricing
Supply Only Price: £4200.00
Estimated Total Bathrooms price for Supply only
Supply + Fit: £9200.00
Estimated Total Bathrooms price for supply and a recommended fitter to install the bathroom
We Supply & Fit: £11500.00
Estimated Total Bathroom price for supply and full management of the installation project
Project Details
Bathroom Type: Main Bathroom
Style: Modern
Work: Supply Only
Installation Date: 2023
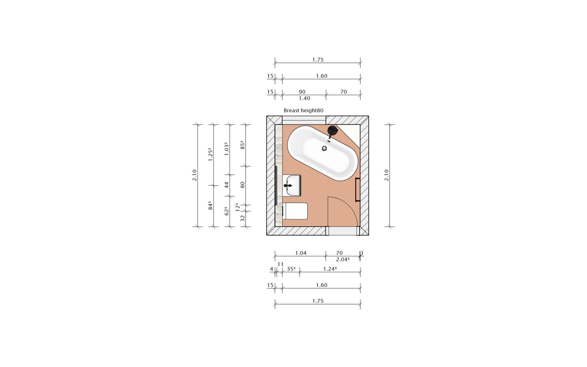
A huge amount of function has been packed into this small and very stylish space. As you can see from the plan, the room is not only an odd size but is relatively small for a bathroom. Clever use of a freestanding bath has allowed a good sized tub to be fitted and then the floorstanding bath taps have been fitted just behind in the space left by the angled wall. These taps coordinate with the basin tap, waste and flush plate in the black finish and even include a small shower handset. The mirror features integrated lighting as well as a demister function, and the black bezel keeps it coordinated with the rest of the black fittings in the room. The boxed out section which houses the plumbing for the toilet and basin continues this by utilising a black worktop and using dark grouting between white tiles.
Brands Used On This Project
- Crosswater, Eastbrook, Roper Rhodes










